40 lawn mower seat safety switch diagram
This video provides step-by-step repair instructions for replacing the seat switch (or safety switch) on a Craftsman riding lawn mower. The most common reaso... I have the sears LT1000 (green color). There is a safety switch under the control level that engages the mower blades. I have to lift the level and lower it to be able to start the motor sometimes. Also there are safety switches at brake pedal and of course under the seat. hope that helps someone.
John Deere riding mowers come equipped with seat safety switches located directly under the operator's seat. When the operator stands, an electrical circuit is broken, and the mower cannot be placed into gear. If the operator attempts to put the lawn tractor into gear while not seated, the John Deere mower will shut off automatically.

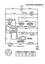
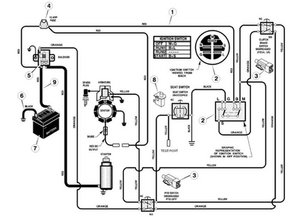
Lawn mower seat safety switch diagram
The "operator presence" safety circuit works (more or less) between the PTO safety switch, a safety switch on the seat, and the clutch/brake switch. What it is looking for is the seat switch being triggered. If you are on the seat, you can start the blades. If you are not on the seat and you attempt to start the blades, the system is grounded ... Lawn Mower Ignition Switch Wiring Diagram moreover Lawn Mower Ignition Switch Wiring Diagram additionally Craftsman Lawn Mower Wiring Diagram also John Deere Mower Drive Belt Diagram also John Deere Wiring Diagrams. on john deere scotts mower wiring diagram ... I disconnected the seat safety switch months ago and everything worked fine up until ... Troy Bilt riding lawn tractors generally come with two factory safety switches. One safety switch prevents the riding mower from being placed in gear while the seat is not occupied, and the other prevents the operator from putting the lawn tractor in reverse while the cutting blades are engaged.
Lawn mower seat safety switch diagram. John Deere Safety Switches available online from Lawn Mower Pros. We carry a large selection of replacement John Deere Safety Switches. Our online catalog has a large selection of John Deere Switches ready to ship direct to your door. 13 Products Found. Oregon 33-015 Switch, Murray for John Deere. Check Out A Safety Switch On A Troy-bilt Riding Mower. Sit in the driver's seat of your lawn mower on a level surface, such as a driveway or sidewalk. On a gear-drive model, put the transmission shift lever on the right side of the seat in the "N" slot for neutral. Pull the attachment lift lever on the left of the seat up to disengage the blades. 2) DECK - inside access panel in front of seat and on the RH side 3) SEAT - underneath seat 4) REVERSE - next to F-N-R shift lever ; If it is difficult to start or operate the tractor - and the suspected cause is a safety switch - check that each switch is being engaged properly by the associated components. By request Erik from Farpoint Farm Show how simple it is to bypass the seat safety switch on your Craftsman or Husqvarna Tractor. PLEASE DON'T DO THIS! The ...
Here is a link to the watercraft kill switch that I used on Amazon: https://www.amazon.com/gp/product/B002MW0P5E/ref=as_li_tl?ie=UTF8&camp=1789&creative=9325... DISCLAIMER! I accept no responsibility for your action. It is your responsibility to do your due diligence in research and making your own decisions about sa... Lawn mower seat safety switch diagram. Start the mower by sitting on the mower’s seat and inserting the ignition key into place to turn the mower on. 3.1 out of 5 stars 3. It's the sneaky culprit, because the wear on it is insidious. It's not a regular maintenance item, so a couple of mowing seasons down the road, it's multiple parts start to break down. Set the brake lever once again, so ... Lawn Mower Ignition Switch Wiring Diagram Inspirational Wiring – Lawn Mower Ignition Switch Wiring Diagram. Wiring Diagram comes with numerous easy to stick to Wiring Diagram Directions. It really is intended to help each of the common consumer in building a correct system. These instructions will probably be easy to grasp and apply. Using this guidebook, you may be capable to find out how ...
Disabling Lawn Tractor Safety Switches. Like many others, the 2015 John Deere D125 Lawn Tractor (aka ride-on mower or garden tractor) has two annoying safety switches. One stalls the engine if you mow in reverse without pressing a button. The other stalls the engine as soon as you get off the seat (or lean too much forward or to one side). Riding lawn mowers have a safety switch located under the seat. John deere seat switch diagram. The seat switch on a john deere lawn tractor is a safety feature on every model. John deere m803327 seat switch which fits 670 770 790 870 970 990 1070 4010 4100 4110 4115 compact utility tractors. When the operator stands an electrical circuit is broken and the mower cannot be placed into gear ... Riding lawn mowers have a safety switch located under the seat. This switch, commonly called a "kill switch" turns off the engine when the mower deck is engaged and the rider gets off the seat. This prevents injury in the event the rider falls of the mower while operating it. If you suspect the switch of malfunction, there are several things you can do to troubleshoot the issue. 161. Messages. 6,280. Feb 9, 2015. #3. 465306x8 Parts List Check pto switch & wiring. If you have a multimeter tool print out wiring diagram & troubleshoot, let us know how it goes, thanks. Lawn Mower Parts, Small Engine Parts & Much More! | PartsTree.com - Briggs, MTD, Toro, Cub Cadet, Husqvarna, Troy-bilt...
Cub Cadet Safety Switch Diagram. diy mower will not crank safety switch diagnosis and my cub cadet rzt would not crank safety switch diagnosis and repair cub cadet rtz ztr how safety switches work on your cub cadet key switch diagram imageresizertool cub cadet key switch diagram furthermore pto switch wiring diagram further manual pto as well as 36 volt ez go golf cart wiring diagram to her with
1. Took the battery out of the mower and removed the plastic box it sits in. 2. Disconnected the wires from the seat switch. 3. Squeezed the release clips on the switch by hand. 4. Pulled the old switch out, clipped the new one in. 5. Connected the wires, replaced the battery holder. 6. Hooked up the battery and ordered a clutch switch.
Messages. 5,765. Apr 28, 2015. #3. Yep just unplug it then the mower wont run. Disconnecting or unplugging the plug will do the same as getting off the seat when the mower is running, it will kill the mower because you open the switch. Depending on how it's wired and how many there are you may not be able to unplug the seat switch.
Gallery of lawn mower ignition switch wiring diagram and gif fair mtd - wiring diagram mtd lawn tractor wiring diagram and | mtd lawn tractors 8 66 139 5020 ...
The Process To Bypass Seat Switch on Craftsman Mower. Step 1: Prepare Your Lawn Mower For Repair. Step 2:Disconnect The Spark Plug of Your Mower. Step 3: Lift the Seat of the Mower. Step 4:Locate the Two Wires. Step 5: Clip the Two Wires. Step 6: Strip Each Wire. Step 7: Cover The Wires.
Step #10: Test The Lawn Mower. Now, take your position in the mower seat and place the key in the ignition switch. Turn on the power of the mower. Test the mower by lowering the mower deck and engaging the mower blade. When you are able to move the mower easily into the reverse position, then the bypass of the safety switch is successful.
Lift the seat of your mower and, if it was recently running, allow the engine to cool down first. To remove the seat, you'll only need to detach one bolt that keeps the seat from sliding forward. Locate the seat safety switch on the bottom of the seat. It will appear like a plastic wire harness and be attached to the underside of the seat.
Step 3: Get Access to the Seat Safety Switch. In most lawnmowers, the seat safety switch is underneath the seat. So, take off the lawnmower seat. If there are any screws, loosen that and then flip the seat off. Right under the mower seat, you will find a socket switch attached to the seat. This is the seat safety switch socket that you need to ...
This DIY lawn mower repair guide has step-by-step instructions for how to replace a lawn mower engine safety switch. The safety switch stops the engine when you release the control bar on the handle, by stopping the ignition coil from sparking; it also has a brake pad to slow the flywheel.
Lawn mower seat safety switch diagram. John deere werke mannheim parts marketing edition r2 03 2011 3 seat overview for cab models tractor series al179256 re276006 al201825 al175598 al175597 al175596 1 5020 5r x x 5m x 6d x 6000se x x x 6000 x x 6010se x x x 6010 x x 6020se x x x 6020 x x x 6030 x x x 6030 premium. Also read related john deere 180 seat safety switch wiring diagram below. Vw ...
Check out The Durbin Compound Merch Store now @http://thedurbincompound.com/I will try to ship within 24 hours from receiving your order so that you get what...
Seat switch contacts A & B in the illustration below are inside the switch body. Contacts C & D are in the body of the electrical connector that "connects" to the switch. The contact strip serving contacts C & D is moved to the open position by a plastic "riser tab" in the seat switch body whenever the connector is plugged in to the seat switch.
HD Switch Lawn Mower Seat Safety Switch Replaces Scag 48717 - Normally Closed. 4.2 out of 5 stars. 18. $9.79. $9. . 79. Get it Fri, Oct 29 - Tue, Nov 2. FREE Shipping.
After I took the screws out near the cup holder, I was able to climb under the mower and pull out the bar and disconnect it from the wire it was plugged into. As for the seat's safety switch, I was able to pull off the seat and get to the safety switch and pull it out.
This DIY riding mower repair guide gives step-by-step instructions for replacing the seat switch on most riding lawn mowers. The seat switch is a safety device that shuts off the engine if it doesn't detect someone in the seat when the tractor starts moving.
Troy Bilt riding lawn tractors generally come with two factory safety switches. One safety switch prevents the riding mower from being placed in gear while the seat is not occupied, and the other prevents the operator from putting the lawn tractor in reverse while the cutting blades are engaged.
Lawn Mower Ignition Switch Wiring Diagram moreover Lawn Mower Ignition Switch Wiring Diagram additionally Craftsman Lawn Mower Wiring Diagram also John Deere Mower Drive Belt Diagram also John Deere Wiring Diagrams. on john deere scotts mower wiring diagram ... I disconnected the seat safety switch months ago and everything worked fine up until ...
The "operator presence" safety circuit works (more or less) between the PTO safety switch, a safety switch on the seat, and the clutch/brake switch. What it is looking for is the seat switch being triggered. If you are on the seat, you can start the blades. If you are not on the seat and you attempt to start the blades, the system is grounded ...
0 Response to "40 lawn mower seat safety switch diagram"
Post a Comment